En Venta
Casa a estrenar de 2 dormitorios con financiacion - Proyecto Los Jilgueros en Oro Verde
Código: 211118

Oro Verde, Entre Ríos, Argentina, Parana, Entre Rios, Argentina.

USD65.000

Casa
Compartir esta Propiedad

Descripción de la Propiedad

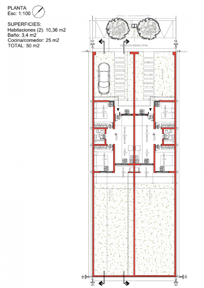
Casa a estrenar de 2 dormitorios con financiación – Proyecto Los Jilgueros en Oro Verde

Presentamos Proyecto Los Jilgueros, unidades modernas diseñadas para vivir con confort, privacidad y calidad, en una zona tranquila y con gran proyección de crecimiento. Una excelente opción tanto para vivienda como para inversión.

Las unidades se ubican en Oro Verde, a media cuadra de Av. Los Chañares y a aproximadamente 300 metros de Ruta 11, con buen acceso y entorno residencial.

Cada propiedad contará con dos dormitorios, cocina, comedor, baño completo, espacio para lavarropas y termotanque, estacionamiento al frente y un amplio patio.

Se trata de una oportunidad ideal para acceder a una vivienda nueva con potencial de valorización y renta.

Precio: U$S 65.000

Modalidad de pago: anticipo del 50% y saldo financiado hasta en 12 cuotas fijas en dólares.

Plazo estimado de obra: entre 8 y 12 meses desde el inicio del proyecto.

Guerrero Inmobiliaria – casas, departamentos, terrenos y campos en Paraná y alrededores.

Mas detalles